HOME
ACQUISITION
PROFILE
PORTFOLIO
DEVELOPMENT PROJECTS
CONTACT
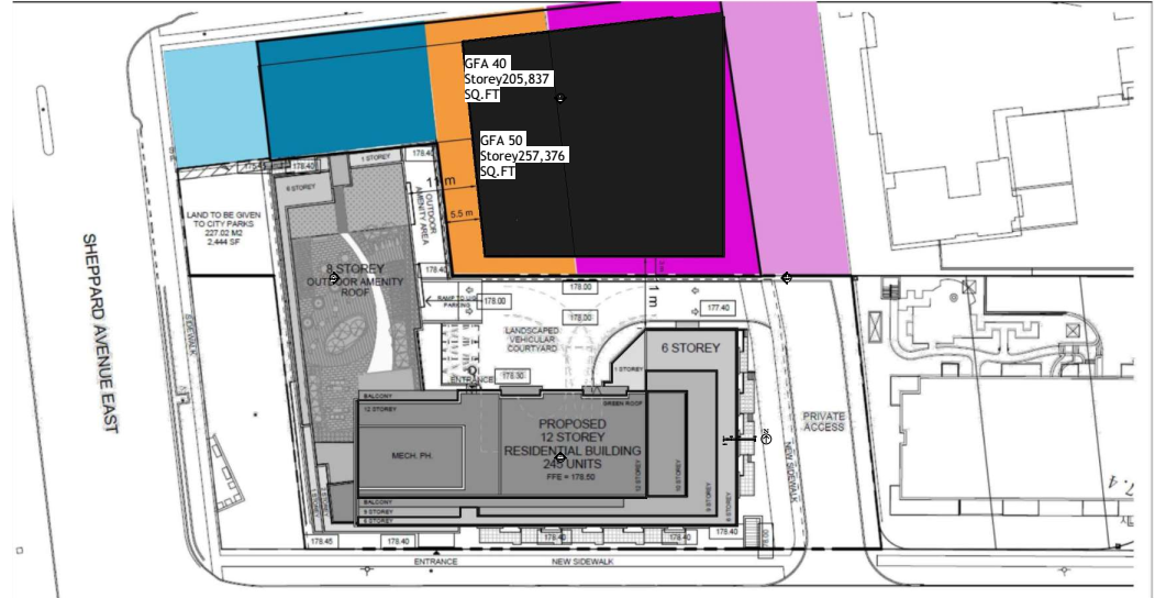
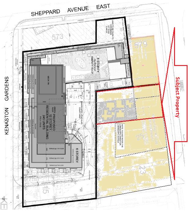
Bayview Sheppard Project
Site Plan